People working at the Butlin’s holiday camp in Minehead will soon be able to stay in improved accommodation under new plans currently under consideration.
Butlins secured planning permission in June 2022 for a temporary “staff accommodation village” at the south-eastern corner of the complex off Warren Road, not far from the West Somerset Railway line and the River Avill.
The village was designed to allow staff to remain on site who cannot find more permanent accommodation in or around Minehead, as well as freeing up space for existing staff quarters to be refurbished.
The company has now applied to create a more permanent base for its staff living on site on neighbouring land, with the intention that the building remain in place for at least the next five years.
The proposed location is a partially used brownfield site within the holiday camp, bordered by the existing holiday caravans, the river, a car park and a football pitch.

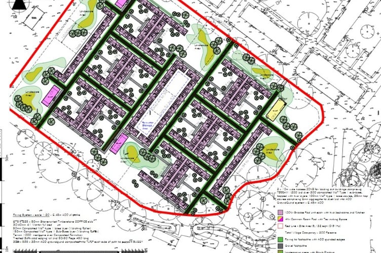
Up to 200 people will be able to sleep in two-berth residential pods, with four amenity buildings being provided for socialising.
The new block is designed to replace both the temporary village approved in 2022 and nearly 100 caravans set aside for staff, which were approved in March 2020.
A spokesman for Inspired Partnership Ltd. (representing Butlin’s) said: “The proposed development will see a partially vacant land parcel within the residential areas of an established holiday resort accommodated by 100 two-bedroom snooze pod residential units, providing 200bed spaces, and four amenity buildings providing warm dry space for daytime activities.
“The residential units hereby proposed shall be occupied exclusively by seasonal staff, and none of the accommodation proposed shall provide a permanent residential address.
“They will be fitted out internally to accommodate sleeping, bathing and cooking facilities, being suitable in size for two people to cohabit.
“The amenity buildings are designed as simple form gathering spaces. These will be fitted out with tea-making facilities and soft seating, allowing the opportunity to relax and to commune.”
Somerset Council is expected to make a decision on the plans by the early summer.





Comments
This article has no comments yet. Be the first to leave a comment.